28000 Chartres
Appartement F5
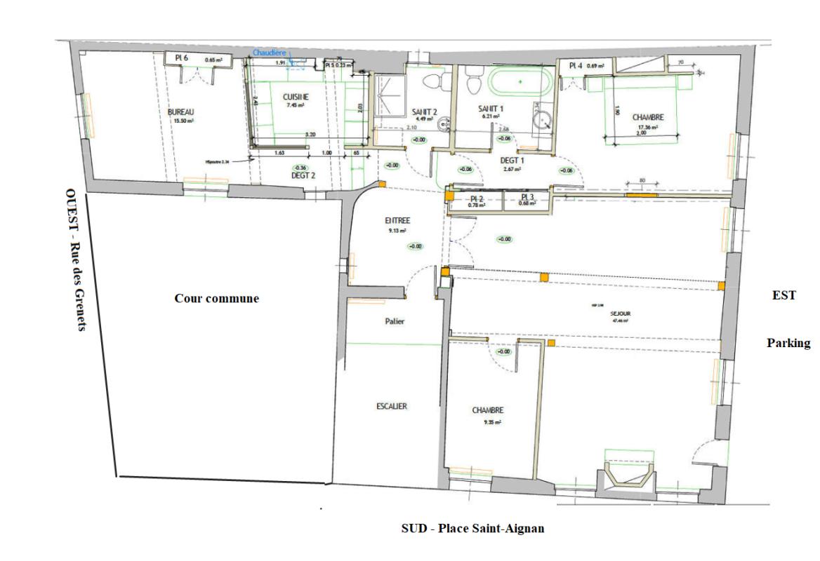
Appartement F5
À côté de l'église Saint Aignan plein centre ville, très bel appartement au 1er étage (pas de voisin de palier) dans bâtisse du XVIIIe, avec place de stationnement privé équipé charge VE/VHybride. Rénové en 2019 (1), bâtiment ravalé (trav. réceptionnés en 2023). Très bon état, habitable sans travaux d'entrée. PAS D'ASCENSEUR.
Dossier diags sur demande.
(1) Chaudière gaz, fenêtres, élec/domotique, cuisine, 2 salles d'eau.
Dossier diags sur demande.
(1) Chaudière gaz, fenêtres, élec/domotique, cuisine, 2 salles d'eau.
395 000 €
126 m²
Code Postal
28000
Ville
Chartres
Type de bien
Appartement
GES
C
Classe énergie
C
Mise en ligne
14 février 2026
Nombre de vues
750