37000 Tours
TOURS HYPER-CENTRE : APPARTEMENT T2 RÉNOVÉ AVEC PARKING
TOURS HYPER-CENTRE : APPARTEMENT T2 RÉNOVÉ AVEC PARKING
Vivez au cœur de Tours sans les nuisances sonores.
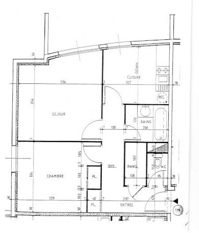
Idéalement situé au 16 avenue de Grammont, cet appartement de 50,6 m² (Loi Carrez) allie le dynamisme de la vie urbaine et la sérénité d'une vue sur cour intérieure. Situé au 1er étage d'une copropriété sécurisée de 7 étages, il est parfait pour un premier achat ou un pied-à-terre stratégique.
Les points forts de l'appartement :
Emplacement Premium : À deux pas de la gare, du tramway, des bus et de tous les commerces.
Calme absolu : L'intégralité de l'appartement donne sur une cour intérieure.
Prêt à vivre : Intérieur rénové et en bon état général.
Espace optimisé : Un salon-séjour lumineux, une chambre confortable avec placard, une cuisine séparée, une salle de bains avec baignoire. WC séparés. Placard et grand débarras dans l'entrée.
Rare dans le secteur, ce bien dispose de :
1. Une place de parking privative au 1er sous-sol.
2. Une cave saine de 4 m2 pour le stockage.
3. Un accès sécurisé par visiophone.
Fiche Technique :
Surface : 50,6 m² (Carrez).
Étage : 1er avec ascenseur.
Chauffage : Électrique individuel (radiateurs programmables à fluide).
DPE / GES (réalisé le 24/02/2026) : Classe D (195) / Classe B (7).
Localisation : 16 Avenue de Grammont, Tours.
-> Ce bien représente une opportunité rare sur le marché tourangeau actuel.
Note importante : Vente de particulier à particulier uniquement. Agences et curieux, merci de vous abstenir, nous souhaitons traiter en direct avec des acheteurs sérieux ayant un projet de financement solide.
Pour plus d’informations ou pour organiser une visite, contactez-moi dès maintenant par message ou par téléphone au 06.23.25.61.63
Idéalement situé au 16 avenue de Grammont, cet appartement de 50,6 m² (Loi Carrez) allie le dynamisme de la vie urbaine et la sérénité d'une vue sur cour intérieure. Situé au 1er étage d'une copropriété sécurisée de 7 étages, il est parfait pour un premier achat ou un pied-à-terre stratégique.
Les points forts de l'appartement :
Emplacement Premium : À deux pas de la gare, du tramway, des bus et de tous les commerces.
Calme absolu : L'intégralité de l'appartement donne sur une cour intérieure.
Prêt à vivre : Intérieur rénové et en bon état général.
Espace optimisé : Un salon-séjour lumineux, une chambre confortable avec placard, une cuisine séparée, une salle de bains avec baignoire. WC séparés. Placard et grand débarras dans l'entrée.
Rare dans le secteur, ce bien dispose de :
1. Une place de parking privative au 1er sous-sol.
2. Une cave saine de 4 m2 pour le stockage.
3. Un accès sécurisé par visiophone.
Fiche Technique :
Surface : 50,6 m² (Carrez).
Étage : 1er avec ascenseur.
Chauffage : Électrique individuel (radiateurs programmables à fluide).
DPE / GES (réalisé le 24/02/2026) : Classe D (195) / Classe B (7).
Localisation : 16 Avenue de Grammont, Tours.
-> Ce bien représente une opportunité rare sur le marché tourangeau actuel.
Note importante : Vente de particulier à particulier uniquement. Agences et curieux, merci de vous abstenir, nous souhaitons traiter en direct avec des acheteurs sérieux ayant un projet de financement solide.
Pour plus d’informations ou pour organiser une visite, contactez-moi dès maintenant par message ou par téléphone au 06.23.25.61.63
210 000 €
50 m²
Code Postal
37000
Ville
Tours
Type de bien
Appartement
GES
D
Classe énergie
B
Mise en ligne
17 mars 2026
Nombre de vues
1 097